根据苏州市相城高新区(元和街道)陆慕菜市场公益性改革工作要求,现将陆慕菜市场商位招商公告通知如下:
一、 项目信息
2020年6月苏州市农产品发展有限公司与苏州相城高新控股集团有限公司签订了《相城高新区农贸市场公益性合作协议》,依据协议精神,为促进苏州相城高新区农贸市场公益性改革进程,满足辖区居民对菜品质优价廉的需求和日常生活服务需求,提升街道居民的生活品质,决定成立合资公司苏州农元市场经营管理有限公司。相城高新区(元和街道)委托其对陆慕农贸市场进行招商运营管理,市场改造面积约9400㎡,提质升级后实现消费场景舒适化、交易信息实时化、计量监管标准化、食品来源可溯化、菜品价格透明化的“菜市场+配套农贸品牌+社区功能服务”新型农贸市场
二、招商业态范围
蔬菜类、冻品、净菜、水果、冰鲜、水产、海鲜、水发、熟食类、特色小食、品牌猪肉、牛羊肉、光禽、商业配套品牌店及其他特色农贸类业态,详见附件一、二。
三、 招商选位流程
1.提交报名材料
本招商公告发布时间为2021年7月2日至2021年7月15日。意向商户在公告发布期间向我司提交相关材料(材料清单详见附件),材料提交地点为苏州市相城区阳澄湖中路18号,陆慕农贸市场东侧管理办公室182室(接收于每日早9点至晚17点进行)。
2.资格审核
我司将于公告结束之日起3个工作日内,将意向商户提交的材料进行审核评审,根据农贸市场公益性改革招商要求“让老百姓得实惠”为核心,筛选出符合条件的意向商户。
3.评审通过
资格审核结果将于2021年7月23日前进行公示,通过资格审核的意向商户,我司将以电话或短信等形式通知其在指定时间内缴纳选位保证金后,意向商户获得选位资格。
4.竞租选位
我司将组织获得选位资格的意向商户通过竞租或商业谈判的形式参加选位。
5.签约交款
选位成功的意向商户应在指定时间内与我司签约,缴纳租金。对于未选位成功的意向商户,我司将统一无息退还选位保证金。
苏州农元市场经营管理有限公司
2021年7月1日
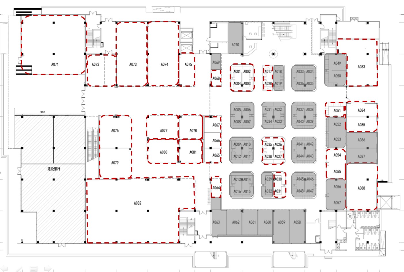
附件一

一楼平面图(红色虚线框标注部分为招商商位)

二楼平面图(红色虚线框标注部分为招商商位)
注:图纸内虚线框部分为招商商位,其中摊岛型商位根据位置不同,展示面宽约为3.6-8.25米,铺面商位面积段约为19-430平米。
附件二
|
摊位号 |
业态 |
面积(㎡) |
|
A01 |
一楼生鲜 |
10.2 |
|
A02 |
一楼生鲜 |
10.2 |
|
A03 |
一楼生鲜 |
10.2 |
|
A04 |
一楼生鲜 |
10.2 |
|
A17 |
一楼生鲜 |
9.1 |
|
A20 |
一楼生鲜 |
9.1 |
|
A25 |
一楼生鲜 |
10.2 |
|
A26 |
一楼生鲜 |
10.2 |
|
A27 |
一楼生鲜 |
10.2 |
|
A28 |
一楼生鲜 |
10.2 |
|
A30 |
一楼生鲜 |
10.2 |
|
A31 |
一楼生鲜 |
10.2 |
|
A51 |
一楼生鲜 |
16.89 |
|
A54 |
一楼生鲜 |
18.4 |
|
A55 |
一楼生鲜 |
18.4 |
|
A64 |
一楼农贸品牌 |
13.72 |
|
A65 |
一楼农贸品牌 |
16.87 |
|
A66 |
一楼农贸品牌 |
18 |
|
A67 |
一楼农贸品牌 |
19.12 |
|
A68 |
一楼农贸品牌 |
11.9 |
|
A71+B120 |
24小时本土特色餐饮 |
485.56 |
|
A72 |
一楼农贸品牌 |
66 |
|
A73 |
一楼农贸品牌 |
132 |
|
A74 |
一楼农贸品牌 |
132 |
|
A75 |
一楼农贸品牌 |
38.6 |
|
A76 |
一楼农贸品牌 |
67.85 |
|
A77 |
一楼农贸品牌 |
49.5 |
|
A78 |
一楼农贸品牌 |
37.8 |
|
A79 |
一楼农贸品牌 |
66 |
|
A80 |
一楼农贸品牌 |
49.29 |
|
A81 |
一楼农贸品牌 |
37.8 |
|
A82 |
一楼农贸品牌 |
431.02 |
|
A83 |
一楼农贸品牌 |
113.43 |
|
A84 |
一楼农贸品牌 |
29.89 |
|
A85 |
一楼农贸品牌 |
33.68 |
|
A88 |
一楼农贸品牌 |
101.04 |
|
B049 |
二楼生鲜 |
11.10 |
|
B050 |
二楼生鲜 |
11.10 |
|
B051 |
二楼生鲜 |
11.10 |
|
B052 |
二楼生鲜 |
11.10 |
|
B053 |
二楼生鲜 |
11.10 |
|
B054 |
二楼生鲜 |
11.10 |
|
B055 |
二楼生鲜 |
11.10 |
|
B056 |
二楼生鲜 |
11.10 |
|
B061 |
二楼生鲜 |
11.10 |
|
B064 |
二楼生鲜 |
11.10 |
|
B065 |
二楼生鲜 |
11.10 |
|
B066 |
二楼生鲜 |
11.10 |
|
B067 |
二楼生鲜 |
11.10 |
|
B068 |
二楼生鲜 |
11.10 |
|
B081 |
二楼生鲜 |
11.10 |
|
B082 |
二楼生鲜 |
11.10 |
|
B083 |
二楼生鲜 |
11.10 |
|
B084 |
二楼生鲜 |
11.10 |
|
B085 |
二楼生鲜 |
11.10 |
|
B086 |
二楼生鲜 |
11.10 |
|
B111 |
二楼农贸品牌 |
19.13 |
|
B112 |
二楼农贸品牌 |
19.33 |
|
B122 |
二楼农贸品牌 |
37.43 |
|
B123 |
二楼农贸品牌 |
34.42 |
|
B124 |
二楼农贸品牌 |
34.42 |
|
B125 |
二楼农贸品牌 |
34.42 |
|
B126 |
二楼农贸品牌 |
34.42 |
|
B127 |
二楼农贸品牌 |
34.42 |
|
B128 |
二楼农贸品牌 |
179.78 |
|
B129 |
二楼农贸品牌 |
33.53 |
|
B130 |
二楼农贸品牌 |
36.02 |
附件三
陆慕菜市场商户材料清单
一、基础材料
身份证、暂住证(非本地户口)、陆慕菜市场招商报名登记表(详见附表)
二、诚信及履约能力材料
个人征信报告及其他征信材料(包括但不限于芝麻信用,腾讯征信等)、不动产权证书、承诺书(市场方提供现场签)
三、经营类材料
1.合同及凭证:连续两年的租赁合同(包括经营场地租赁合同、仓库租赁合同、办公房屋租赁合同、种植养殖基地土地租赁合同等)、供销合同、供销凭据等可以证明经营规模的相关材料;
2.证照:营业执照、食品流通许可证、运输经营许可证等可以证明合法经营的相关证照;
3.品牌:自主品牌注册商标认证书、品牌使用授权书(品牌方对入驻陆慕菜市场经营的授权材料);
4.经营成果:2020年度销售流水、基地或供应商或品牌方提供的年度产品销售总量证明、目前自有连锁店数量(提供每家门店的营业执照和租赁合同)、配送服务单位的数量(提供每家服务单位的合作合同);
5.经营示意图:产品经营货柜及设施设备示意图、产品工艺流程示意图(涉及现场加工类)、门店VI、价格牌等经营细节效果展示图等现场展示的相关资料。
四、竞争力说明
1.形象:包括目前经营门店的照片、对本市场经营商位的效果图以及统一的品牌店面形象、LOGO展示;
2.产品:销售产品清单及相关介绍说明;
3.荣誉:行业内获奖证书及其他有公信力的材料证明、有影响力的官方媒体报道等证明材料。
注:
1.上述材料请提供原件及复印件一份,现场审核过后将原件返还,如涉及图片的请打印图片。
2.上述材料主体是直系亲属的,需提供关系证明(如结婚证、户口本)。
附表:
|
陆慕菜市场招商报名登记表 |
|||||||||||||||||||||
|
业态 |
品牌 |
|
报名日期 |
|
|||||||||||||||||
|
报名商户基本信息 |
|||||||||||||||||||||
|
姓名 |
|
性别 |
|
籍贯 |
|
联系方式 |
|
||||||||||||||
|
身份证号 |
|
现居住地址 |
|
||||||||||||||||||
|
本市场经营筹备信息 |
|||||||||||||||||||||
|
经营 方式 |
□亲自经营 □直营 □联营 □加盟 □委托经营 □雇佣经营 □其他 |
||||||||||||||||||||
|
经营 人数 |
|
商位性质 |
□门面 □摊位 |
面积 |
|
||||||||||||||||
|
参与 经营 |
姓名 |
|
与本人关系 |
|
身份证号 |
|
|||||||||||||||
|
姓名 |
|
与本人关系 |
|
身份证号 |
|
||||||||||||||||
|
姓名 |
|
与本人关系 |
|
身份证号 |
|
||||||||||||||||
|
自我推荐归纳 |
|||||||||||||||||||||
|
个人 |
提示:什么时间开始,从事过什么行业或业态。
|
||||||||||||||||||||
|
货源 |
提示:从什么地方进货或货源组织的方式。 |
||||||||||||||||||||
|
参与 |
提示:是否有过与行业或市场同步提升的经历,或是否在经营过程中进行过自我提升、什么原因下进行提升。
|
||||||||||||||||||||
|
曾经 |
提示:在行业内得到过的荣誉、奖励等情况。
|
||||||||||||||||||||
|
对所 |
提示:对从事过的行业或业态的分析,过去、现在与未来的描述。
|
||||||||||||||||||||
|
具备 |
提示:描述并提供尽可能多的优势证明材料。 |
||||||||||||||||||||
|
1.货源 |
|
||||||||||||||||||||
|
2.业务量 |
|
||||||||||||||||||||
|
3.诚信 履约 |
|
||||||||||||||||||||
|
4.品牌 连锁 |
|
||||||||||||||||||||
|
5.装修 设计 |
|
||||||||||||||||||||
|
6.经营 团队 |
|
||||||||||||||||||||
|
7.供应链 |
|
||||||||||||||||||||
|
|
8.平抑 菜价 |
|
|||||||||||||||||||
|
|
9.项目 管理 |
|
|||||||||||||||||||
下一篇:万融国际大厦租赁招标公告