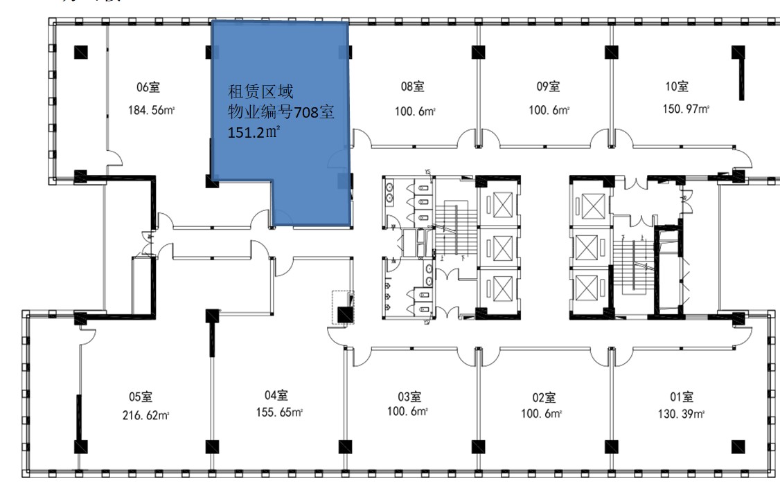
苏州绿原城乡建设有限公司对位于苏州市姑苏区人民路3158号万融国际大厦写字楼607室进行公开竞标招租(详见租赁区域平面图),万融国际607室建筑面积约151.2㎡(具体区域招标以现场确认为准)
万融国际项目招租位置示意图:

|
店面号 |
建筑面积 |
楼层 |
经营业态 |
|
写字楼607室 |
约151.2㎡ |
六层 |
不可经营餐饮、零售超市 |
一、报名条件:
1、具有经营相关业态经历并提供相关证明材料,在苏合法注册的独立法人资格的企业或个人;
2、企业:注册资金不低于50万元,注册经营范围内包含此次竞标从事业态。财务和经营状况良好,具备履行合同能力;
3、个人
1)人行征信报告
2)竞标人提供身份证原件、复印件,在苏居住证明(本市户口本或临时居住证)。
二、报名、现场勘查、答疑的方式和时间:
报名、现场勘查、答疑的地点:苏州市姑苏区江宙路132号四楼苏州市农产品发展有限公司;
咨询电话:13962195229 王女士
上一篇:陆慕菜市场商位招商公告
下一篇:江宙路农贸市场租赁招标公告